武汉 “泸溪河桃酥” 概念店
泸溪河是一家很有人气的烘焙食品店铺,每天在店铺里贩售当天新鲜烘焙的各种中国传统点心。
▼ 商品售卖区面对商场主入口

该品牌更新前的店铺空间使用中式庭院的要素,整体色调以品牌代表色——深绿色为主。虽然对于一个烘焙店铺来说已足够有设计感,但总是无可避免的会让人感受到连锁店铺所特有的标准化氛围,很难真切地体会现场烘焙的温度与手工制作的细致。
▼ 店铺外观


因此,我们决定不单单为了推销商品而设计,也将如何使顾客在店铺空间里感受到糕点手艺人的技艺作为设计的考量。为达到这个设计目标,我们将店铺后厨打开,形成面向公众的制作间,让顾客更加直观地注意到制作者在空间背景中的存在。
▼ 形成面向公众的制作间


地面使用的三合土与墙面的硅藻泥由工匠手工制作,柱子周围则特意选用每块都稍有不同的陶土砖。通过突出手作的材料特有的质感,我们希望创造一个能让客人真正感受到人情味和手工制作过程的舒适的空间,而不是一个精致却毫无生机的店铺。
▼ 售卖柜台


手工艺元素在整个空间中无处不在。例如摆放产品的道具,从我国传统手工艺品竹编瓷胎中找形,灵感来源于其“包裹和保护重要物品”的含义。竹纤维自然流畅的编织形态和人造石细腻精致的仿瓷质感,使得产品展示柜本身便成为一件值得触摸和视觉停留的工艺品。
▼ 渐变的木质门帘&手工编制的道具

为了延长顾客在商品售卖区的停留时间,有自由逛店的感觉,这些道具有序地错开摆放。同时从入口至柜台由矮到高呈阶梯状放置,以保证顾客从入口处便能看到每个展台陈列的产品。
▼ 道具从竹编瓷胎“包裹和保护重要物品”的含义中获得启发


疫情对零售空间的设计提出更高的要求,包括是否有效率、耐久、易于清洁等。在这种趋势下,我们更想挑战使用非常规的建筑材料,以创造真正令人感到舒心的空间。
▼ 细部




▼ 制作过程


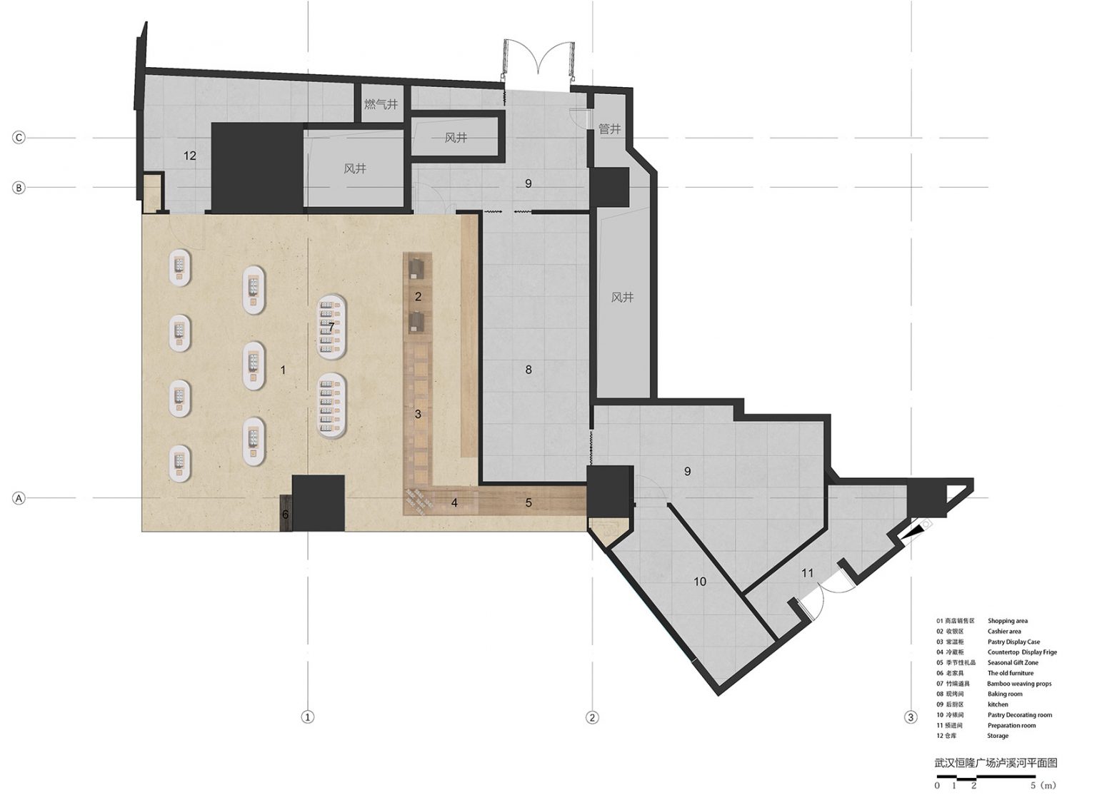
▼ 平面图

项目名称:泸溪河新概念店
项目类型:餐饮空间
项目面积:200平方米
项目地址:湖北省武汉市京汉大道668号恒隆广场L105号
设计公司:小大建筑设计事务所
设计团队:小嶋伸也、小嶋綾香、北上紘太郎、沈明珠
主要材料:三合土、硅藻泥、陶土砖、竹编、木材、人造石、玻璃
空间摄影:宋昱明
项目业主:泸溪河
好设计网 www.haoooo.cn 欢迎投稿:infohaoooo@163.com
好设计网 www.haoooo.cn欢迎投稿:infohaoooo@163.com
