广州 “EchoSolar回响”酒吧餐厅,充满魔力神秘感
一个理想的空间一定是神奇、静谧、充满魔力且神秘的。
——路易斯·巴拉甘

暗黑如肌肤般包裹住它的躯体
它在暗夜里开始苏醒
黑色的躯壳内是引人一探究竟的神秘
越夜越有机
如果你在人来人往的街道中发现了它
请径直进入——

探秘
门后的廊道不算蜿蜒
异形的石柱藏着曲折的通幽之妙
灰色笼罩的基地
石材被粗犷地嵌入墙面
没有过多的修饰
由原始的清水泥带来扑面的肃穆感

廊道的尽头豁然开朗
非常规的空间意境
挑起酒吧内外戏剧性的碰撞
没有张扬的颜色辅助
唯有弧形点缀,直击冷硬的墙体
大片挥洒的波纹墙面
为厚重墙体赋予流动的质感



融变
地面和屋面的边界融化交织在一起
连同吧台的玻璃砖墙体
与黑暗形成一种对峙
水晶墙下折射的流动光影
宛如暗流涌动
一石激起千层浪
蓄势握拳的雕塑
力量磅礴喷发



方案的内核在于隐秘
流动的质朴外壳
包裹一个巢穴式的空间
光明作为唯一的空间边界
引导着包括视觉在内的全部感官


建构细节通过内部的墙垣展现
升腾而上的开口部分突然出现
将视觉引向天花
环状的LED灯带依托酒柜层层上叠
透白的水晶墙延展至空间上方
倾斜的明亮被安稳的围绕
吧台成为整个空间的视觉中心点
在这里
通透成为形式的一部分


复古的线板和罗马柱
为吧台成列提供力量支持
金色的点缀在灯光的映衬下
与琥珀晶莹的酒品交相辉映
酒是水,水是没有度数的酒
喝下这杯 是否减轻了身体的密度?




人和
以吧台为中心 分出前后两处沙发区
暗灰色的墙体延续包裹
深蓝与桔色的沙发突出独立
羸弱的亮光虚化了空间及人与人的界线
让环境成为配角
放松与畅谈成为氛围的核心



二层的墙面宣泄暗夜的黑
消弭头顶带来的压迫感
营造置身太空的虚无
墙垣带着与生俱来的岩石肌理
与裂隙勾勒着空间立面的起伏
形成一种存在于“表象”和“实体”之间的空间



桔色的墙体在虚无的空间中分隔出卡座
带着被包裹的真实感
光线成为指引人前行的灯塔
真实与虚无之间从未如此亲密
包间内的光线散漫
削减了几分对行动的引导性
向下兼容的椭球体有着起伏的肌理
让光线散射得更加随意
密闭的空间让思想更好地沉浸其中
感知被不断放大


拾级而上
空间随着人活动的轨迹发生变化
犹如褶皱随着运动发生改变

交织
当绚目和雪亮的表现欲都偃旗息鼓
内心深处的欲望才会伸出触角
触碰你我的灵魂
幽暗之中
各种感官被唤醒
感知和体验不断发生变化
从宽到窄 明到暗 清晰到模糊
再从流动到凝固
体验感是最诚实的
它让空间充满生命的张力


行走其中
脑内闪现出纪伯伦的诗句——
“一个人有两个我
一个在黑暗中醒着
一个在光明中睡着”。
▼ 一楼平面图

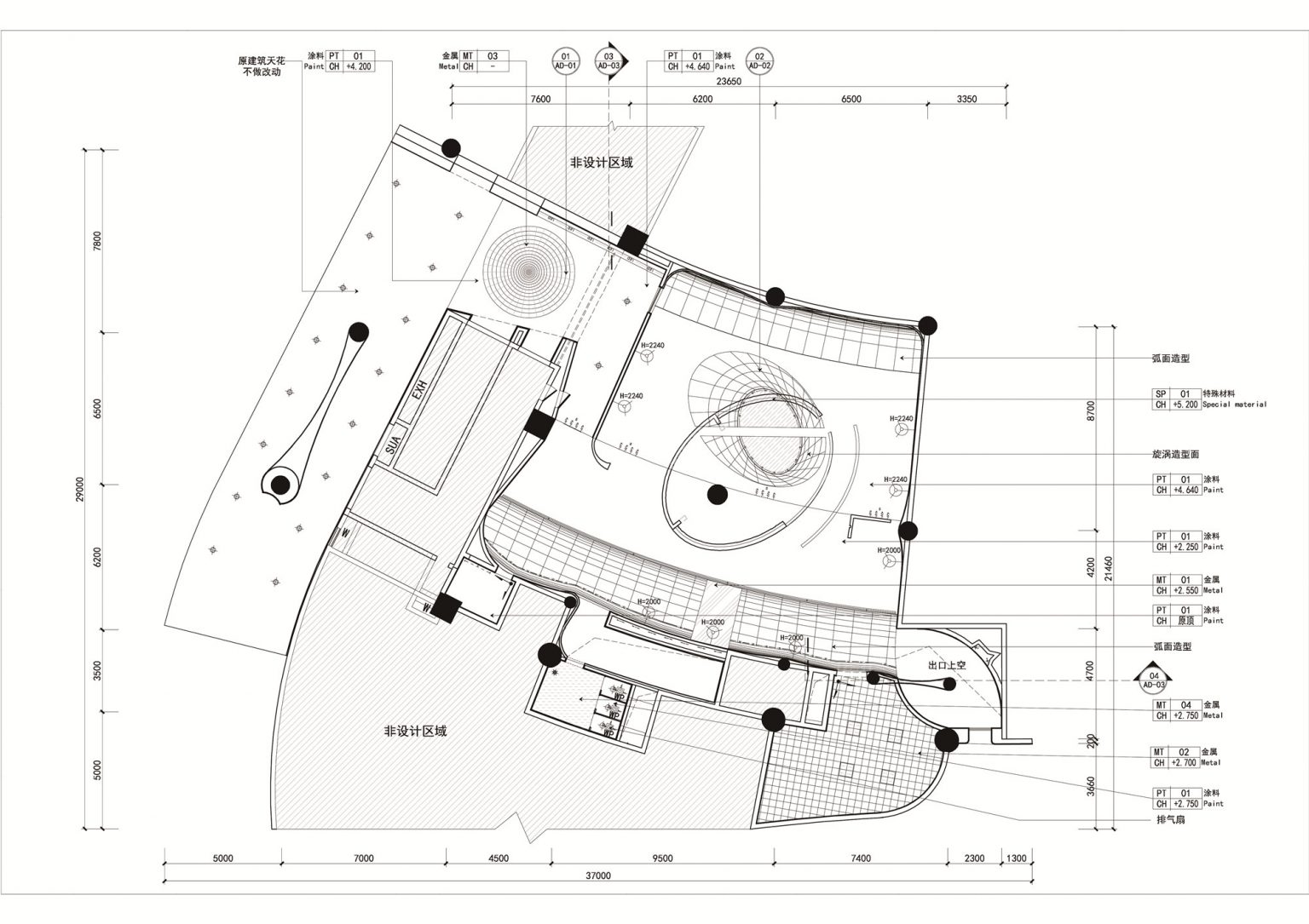
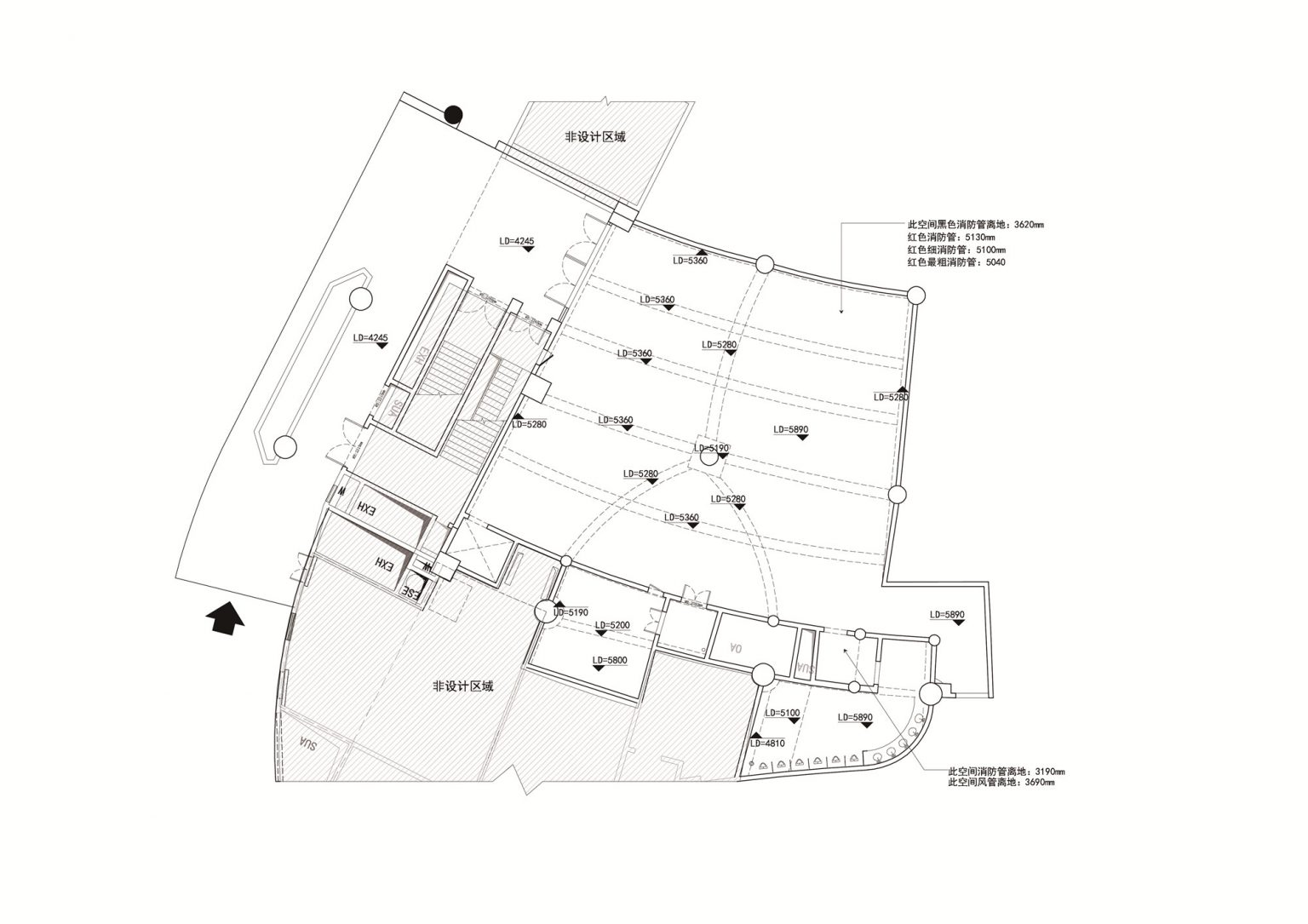
▼ 一楼天花图

▼ 二楼平面图

▼ 二楼天花图

▼ 立面图



▼ 原建筑图

项目名称:EchoSolar回响音乐餐厅
项目类型:餐饮空间
项目面积:380平方米
项目地址:广东省广州市天河区临江大道391号101铺自编02号
设计公司:大匠设计
主创设计:卢维涛
主要材料:自流平、水泥漆、玻璃砖、涂料、金属、发光软膜、LED线性灯
空间摄影:翱翔
好设计网 www.haoooo.cn 欢迎投稿:infohaoooo@163.com
好设计网 www.haoooo.cn欢迎投稿:infohaoooo@163.com
