睡眠研究所民宿,成年人的童话世界
项目位于上海浦东迪士尼附近的一个村庄内,是睡眠研究所民宿的迪士尼店。业主委托多么工作室将一栋农村民宅改造成一个拥有10间客房的精品民宿。
我们认为每个来迪士尼的成年人心中都有一个童话梦,因此我们意图打造一个成年人的童话空间,温暖、纯粹、不同于外面的世界、可以让人暂时忘记自己身处何方,这也许就是成年人的童话世界。

▲ 一层公共空间休息区

▲ 公共空间休息区近景
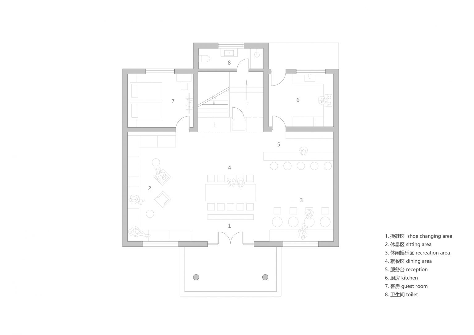
整个项目为三层建筑加两间平房和一个大院子构成,总建筑面积450㎡,原本作为民宅居住使用,一层为客厅厨房和一间卧室,二三层均为四室一厅两卫房型。我们改造时保留了一楼的原有布局,将二三层改为九间拥有独立卫生间的客房。

▲ 餐厅

▲ 由餐厅望向吧台区

▲ 由餐厅望向吧台区

▲ 吧台后方专为存放客房钥匙而设计的收纳架
民宿一层为接待大厅,设计初期我们先让施工对现场进行拆旧,来恢复空间原始的面貌。当拆掉原本的石膏板吊顶露出建筑本身混凝土楼板的那一刻,我们确定顶部已不需要再做过多装饰了。裸露的清水混凝土顶棚和温暖的木质家具呈现出的是温和质朴的原始气息。入口的欢迎鞋架、休息区的展示架子以及餐区的吧台,挑选了半透的材质,当光线穿透过其间,空间随之变得更加轻盈。在鞋架和展示架上,设计师精心设计了组装节点,从画图、打板、生产,直到亲手组装,在帮助业主减少成本的同时也完成了一次有趣的设计实践。

▲ 接待大厅

▲ 大厅局部

▲ 咖啡桌

▲ 休息区壁炉

▲ 聚碳酸酯板展示架

▲ 入口换鞋区

▲ 聚碳酸酯板鞋架细部
二层和三层为客房区,我们针对不同的房间做了不同的设计,打破常规的格局。或是在空间里建造高低错落的体块,或是弯曲的顶面,或是坡顶,一方面是用于遮蔽水电经过的管线,同时也是为了将建筑感注入室内,把每个房间营造成一个小世界。每当进入不同的房间就好像进入不同的童话故事里,而故事的主角将会是入住的每一位客人。

▲ 家庭套房

▲ 客房入口

▲ 客房内部 - 1

▲ 客房内部 - 2

▲ 客房内部 - 3

▲ 客房内部 - 4

▲ 客房内部 - 5

▲ 客房局部

▲ 客房内部坡屋顶
本项目在降低造价的基础上,对材料使用、施工手法进行了深入的研究,完成了一次低成本的建造实践。比起雕栏玉砌,我们更渴望营造一个素颜质朴的空间,让人卸下防备感,自然地在空间内体验和感受。成年人的童话世界,褪去了浮华的装饰,留下的是质朴的本真。

▲ 一层平面图

▲ 二层平面图

▲ 三层平面图
项目名称 : 睡眠研究所民宿
建筑面积 : 450㎡
项目地址 : 中国 上海
设计单位 : 多么工作室
设计团队 : 王维,盛乐
空间摄影 : 林山
项目业主:上海睡眠研究所
完成年份 : 2020年
好设计网 www.haoooo.cn 欢迎投稿:infohaoooo@163.com
好设计网 www.haoooo.cn欢迎投稿:infohaoooo@163.com
