台式风家居
本套案例业主是台湾人,在基础功能的要求上要达到一种去繁求简,实用又美观的台式风。设计师以木质+石材为基调,以开放式隔局为主的设计,营造出通透、开阔的环境表现,将功能性与生活美学结合起来,除去纷繁复杂的装饰,以质朴的色彩加上极具线条感的设计手法,使居家空间回归自然纯粹的状态,营造简洁明快又赋有质感的生活空间。
室内空间装饰简约、工整、自然,开阔通透的空间感受、简单而不浮夸的室内装饰、精致完美的细节表达,都在随时传达着主人的格调与品位。

客厅和阳台中间利用窗帘作为功能划分,拉上窗帘,阳台放上一张单人沙发椅,变可作为独立的阅读休闲空间,平时作为客厅一部分,扩大客厅空间面积。阳台两侧靠墙定制到顶的柜子,靠窗定制矮柜,既增加台面装饰又增加收纳功能。
窗帘盒和门套都是采用木饰面,客厅和阳台无主灯设计让顶面更加简洁干净,视觉上显得层高更高,光线更加均匀,可以更加有层次的利用光线,配合落地灯,筒灯营造不一样的客厅休闲照明氛围。
圆形艺术茶几错落搭配,精致实用。

拉上阳台拉上窗帘,阳台独立开来形成独立空间,拉开单层白色窗纱,客厅在光线的照射下,给人不一样的恍若梦境的温馨浪漫空间。




客餐厅一体,南北通透,沙发2.8m可3人座,:黑白永远是经典永不会过时的色彩,背景墙成品定制黑色细木条造型木饰面,与电视背景墙白色木饰面柜体色调形成明显的色调对比,简单而不失艺术魅力。

沙发边几上错落摆放黑白书籍搭配艺术雕塑装饰,打破 一些单调、生硬的线条,获得更完美丰富的空间感受。

一抹绿色的点缀让整个内敛沉稳的客厅瞬间富有一丝生气活力。原本沙发下面铺上地毯更显精致品质,遗憾地毯买小了尺寸。


嵌入式电视柜,镂空设计展示业主的一些手作和小朋友的玩具很有家的味道,如果是书籍整体装饰性会更具艺术性哦。

从玄关一直走进来视野瞬间开阔,加上房子本身条件还不错,阳光充足,通风良好。石材与木饰面的搭配,给人一种超出想象的低调奢华。 旁边的一副墨绿色为主的装饰画是业主朋友赠送的,要是尺寸再大一些就更完美了,也能给空间带来一丝亮眼的点缀,提升屋内的气质。

从餐厅看客厅玄关,餐厅+客厅+玄关+过道+厨房都是选用统一款式的浅灰色地砖,表面上像是地板材质,大面积的使用视觉上赋予整体空间一种沉稳又冷静的感觉。

餐厅西厨一体开放式,增加家庭成员互动性。餐桌居中的摆放,体现出台式风格的大气与对称。餐桌本来设计的时候设计师选择的是做旧木质的台面,后期业主要选择大理石餐桌,感觉大理石餐桌质感天然,看起来特别大气上档次,会比较容易打理。餐桌上方造型独特的金属精致吊灯,,华丽中透着金属光泽,为餐厅增色不少。

西厨与旁边的电器柜一体设计,西厨的设计增加了更多的操作台面,可以很方便解决早餐的问题,最左边两个柜体内藏嵌入式冰箱,右边柜体是嵌入式的烤箱微波炉,隐藏式的设计让整体风格更加统一协调,整洁大气。

两面选择白色基调灰色纹理的大理石作为背景墙,让空间更显优雅大气,又不失艺术氛围。

进门玄关,原始户型进门玄关比较狭小,把原始厨房一分为二,外侧做了整体的收纳玄关鞋柜装饰柜一体,里面做一排一字型厨房操作台面。玄关鞋柜镂空设计,空间透明,内嵌筒灯,增加光线照明,随手放置进出的钥匙包包物品,很方便。

进户门左边是客卫,采用隐形门设计,增加神秘感,营造私密空间。柜体整体采用纹理木饰面,简约舒适,建构一个驰骋性灵的自由领地,安静地享受与自然的独处。


床尾装饰柜中间上方镂空设计下方抽屉增加更多的收纳功能,装饰性也很强,两边柜体选用透明玻璃柜门,内嵌灯带,里面大都摆满了主人的包包作为装饰。床一边靠墙定制顶衣柜,柜门木饰面颜色与卧室门及延伸的墙面木饰面颜色形成一深一浅的色调对比,又具有线条感。

主卧的设计简约而质感,床头背景墙浅灰色质感墙纸,床头灰色皮质软包,两边浅绿色吊灯装饰与抱枕颜色相呼应在与灰色系的床品下形成鲜明的色彩对比,为屋主营造出静谧而质感的睡眠环境。

主卧也是无主灯,床头上方一边木条吊顶装饰,床尾一排镂空装饰柜,木质的应用给主卧带来更自然舒适的睡眠环境,更加温馨。


从厨房看玄关,厨房上面柜体都是采用和外侧柜体统一材质的木饰面,墙面30cm*60cm黑色瓷砖,台面灰色质感石英石,木色+黑色+灰色搭配简约干净质感的厨房空间。一字型的操作台面满足简单的洗切炒的合理动线。采用透明玻璃移门代替常规门,可封闭可开放,也不影响玄关采光,进门视野上也有了延伸空间,不会觉得空间狭小压抑。
厨房外侧一排到顶柜子是柜体嵌入式冰箱,高颜值与使用性并存。

客卫保留一个台盆和马桶空间,即使很小的空间,设计上也没有丝毫懈怠。地面精选的不同色彩图案瓷砖拼接,半墙浅绿色长形瓷砖拼接,点状白色洗手台搭配白色圆形台盆,台盆下方柜体增加收纳,悬空处理方便打扫。台盆上方镜柜镂空设计,镜柜上下方嵌入灯带,增加光线,整体打造精致干净清爽的客卫空间。

主卫独立出来干湿分离,台盆马桶同一空间,淋浴单独空间。白色洗手台面,高颜值的台上盆,下方柜体设计满足更多的收纳功能,上方镜柜内藏更多的是女主人的日常化妆用品。一侧镂空的隔板设计,增加收纳也可以摆放装饰品也很美观。

原始户型图
原始户型南北比较通透,每个休息的房间都有独立的阳台,采光还是不错。最大的问题的就是进门玄关比较小,换鞋收纳进出不是很方便。
业主需求
1、4人居住,夫妻两人,女儿7岁,儿子5岁,需要3个独立房间。
2、习惯台湾的生活习性,喜欢台式风格,需要开放式的空间,希望有中西厨空间。
3、人口比较多,希望有两个独立的卫生间。
4、需要很多的收纳空间,有很多手作需要空间摆放。
5、希望有阅读的空间。

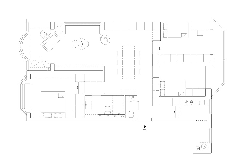
改造后平面布局图
1、把进门左边客卫和主卫空间重新规划,缩小客卫空间扩大主卫空间,目的让主卫独立出来,多出更多的空间做公共收纳空间,人多使用起来也比较方便。左边客卫保留一个台盆和马桶空间。主卫独立出来干湿分离,台盆马桶同一空间,淋浴单独空间。主卧门移动靠墙重砌一面墙留出60cm做出一排到顶的收纳柜。平时的日常囤货用品也方便收纳储藏。
2、原始户型进门玄关比较狭小,把原始厨房一分为二,外侧做了整体的收纳玄关鞋柜装饰柜一体,里面做一排一字型厨房操作台面。用透明玻璃移门代替常规门,可封闭可开放,也不影响玄关采光,进门视野上也有了延伸空间,不会觉得空间狭小压抑。厨房凹进去空间作为洗衣房,收纳空间。
3、中间的房间作为男孩的房间,打掉一部分的墙体做薄12cm厚度,做到顶的柜子与外侧走廊玄关鞋柜齐平。
4、最里面的女儿房和男孩房间一样,压缩一部分面积做外侧西厨橱柜操作台的空间,房间内部床靠墙放置最大化利用空间。
5、女儿房外侧靠墙做整个L型的西厨操作台面,延伸做一排的电器柜,收纳很充足。
6、开放式的空间设计,餐厅客厅阳台一体,餐厅餐桌可容纳8人坐,环绕形式的动线设计。
