不惊 . 喜
以城市的风韵和气质为基调,将内敛雅致的传统文化融入现代的设计语言,以此延续老建筑的良性更新。灌注其中的人与物件、自然的情感关系,是对传统精神的回应,也是对当下生活的反思,更是源自生活本身的诗意。

一个初冬的午后,暖暖的阳光照进房间,一切都显得洁净如洗,灿烂明媚。沏上一杯浓浓的咖啡,伴随着轻快惬意的旋律,享受那一刻的舒适。

空间里的每一件物品都没有运用过分的修饰和装点来试图捕捉视觉感官,而是以尊重物质本身的特性把其气质以最大化的方式表现出来,当你身临其境时,能感觉得到一切都是在自然地流露。

在空间整体的灯光设计上,摒弃纷繁富丽的主灯吊饰,抛却外化的藻饰,将留白的艺术投注其中,灯带光影丰富了空间层次,呈现朗阔旷达的中空格局。

餐厅空间以餐桌为中轴,对称式的装饰墙面形成互动的场景,让彼此在此分享生活,营造浓淡舒适的空间色调,每一个瞬间都是家人在此一起创造幸福生活的回忆。

一条东西轴线将所有的功能区串联,设置多个入口且对应联通。两侧通透的落地玻璃,繁复精致的泰国壁灯,勾勒出返璞归真的生活氛围。以一种不落俗套的自由度,让空间的艺术性得以升华。

完美诠释生活的品质不在于富丽堂皇,在于餐具细节,在于品味和画作的艺术风格。

主卧温润木地板,窗外自然洒落的阳光提供主卧室温暖的空间氛围。

东方意美与人文内涵兼收糅合,以素雅简净的居住格调舒缓疲惫于都市节奏的身心,生活于此间,无过多尘杂琐事,心净且轻,安逸闲适。

主卧弱化了往常平淡常规的设计方式。还原了自然本真。会替你平息外界环境下卷带于身的浮躁疲惫,从而真正享受入梦中的安宁。

取其形表其意,去掉繁琐的制式,回归东方意蕴核心。没有太多造作的修饰与约束,更多的是在各个细节体现出对文化的极致追求。

步入空间内部,大面积的木饰面与清简的线条布局,低调中有落落大方的气度,清透中有稚拙温润的触感。

原木质朴,象征心境不乱,如清风和熙;金属刚硬,寓意心志坚定;书房的设计尤其精妙,包括灯光和架子上的摆饰选择,都在舒缓书房的时间,让人能静下心来,享受沉醉于精神世界的一刻。

阳光、空气和动线不断穿透流动。楼梯通过矩管有序的分割方式,将墙与楼梯相结合起来,给人坚硬的力量感,但又不失细腻,整体更加贴合现代年轻客户探索新奇及时尚的态度。

健身房、书房和楼梯之间是透明的隔断设计,是为了让业主在办公的时候能兼顾孩子在健身区玩耍,楼梯处走动的情况,健身房则以开敞的空间,给孩子一个开放的空间氛围。让空间和生活增加互动和亲密感。我们希望家是互动的空间,工作和生活更紧密。

一个让人无限放松的娱乐休闲空间。酒柜、水吧、茶室、收藏室、,会客厅一应俱全,贯通的大空间,极具享受体验。这里是家里最舒适的避风港,也是全家人寻找内心力量的僻静所,我们构建的是一个可以独处、思考,也能容纳家人交流的空间

对一层楼梯处进行了挑空处理,并在地下层增加了两个采光窗,这是一个重要的举措,从而使下叠楼层连成一气,拥有充足的光线眷顾并形成气韵的流动。

以简约的美学手段去构筑一个具有多重含义的空间,同时也在引导房屋主人找到自己喜欢的生活方式。


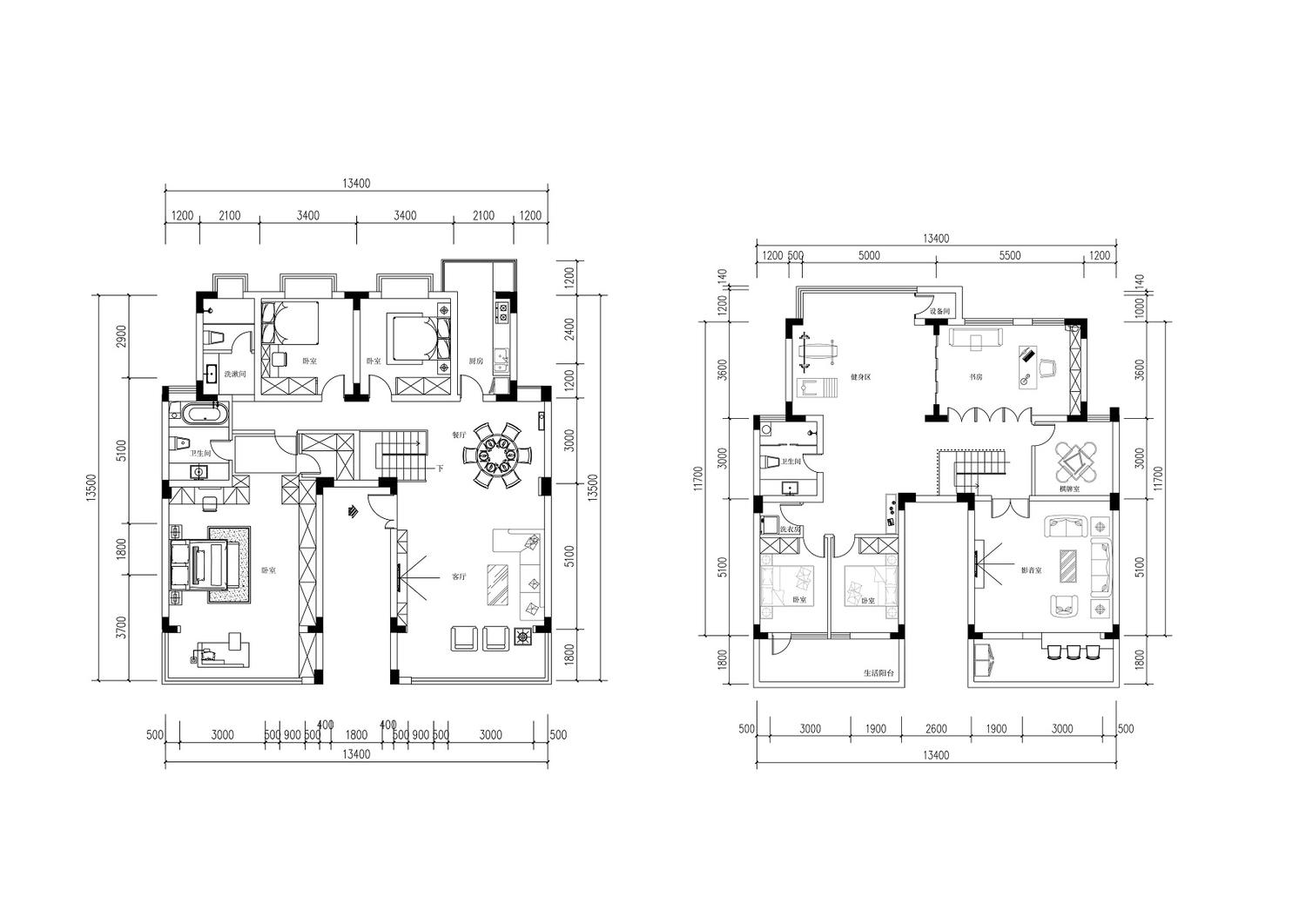
房屋面积:360㎡
房型:4室以上
设计风格:现代 原木
装修预算:30万以上
