印象里的牛排店
2020-01-06












▼ 原始框架结构图

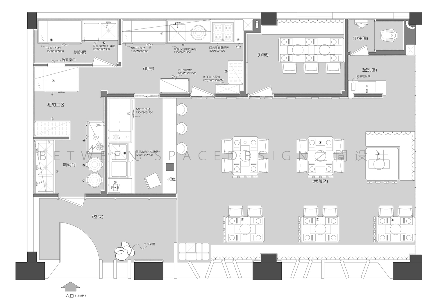
▼平面空间布置图

项目名称 | Name:印象里的牛排店
项目地址 | Address:福建-印象天澜-膳牛
设计单位 | Design: Between福建之間设计
设计总监 | Designer:章斌Frog、陈洋Ace
设计主创 | Designer:陈慧芬Ada
设计时间 | Time:2019.9
项目面积 | Area:145㎡
主要材料 | Typical materials:铁艺、金属、铁板、木饰面、石材
软装陈列 | Designer:肖阳阳Kunkka
视觉表现 | Designer:曾浩Max
